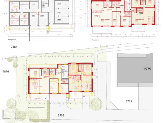
Das 1959 erstellte Mehrfamilienhaus wird umfassend saniert. Das bestehende Satteldach wird zurückgebaut, das Gebäude um ein Geschoss aufgestockt und neu mit einem klassischen Flachdach abgeschlossen. Die Wohnungsgrössen und Grundrisse entsprechen nicht mehr den aktuellen Anforderungen des Wohnungsmarktes. Daher werden diese im Zuge der Umbauarbeiten optimiert und neu werden pro Geschoss grosszügige 3.5- und 4.5-Zimmerwohnungen erstellt. Die technischen Anlagen und Installationen des Gebäudes werden komplett ersetzt. Die Wohnungen erhalten neue Nasszellen, Küchen, Boden- und Wandbeläge sowie geräumige Balkone. Die Wohnungen wurden im Herbst 2022 bezogen.
Privat
2021/2022
auf Anfrage
Baumeisterarbeiten / Gipserarbeiten / Plattenarbeiten / QS Brandschutz
Liegun GmbH