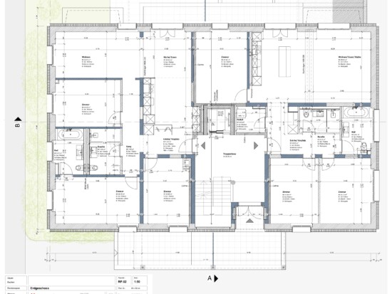
Das bestehende Wohnhaus wurde komplett saniert und im Zuge des Umbaus die Grundrisse der Wohnungen optimiert. Sämtliche Wohnungen verfügen nun über moderne und dem heutigen Stand der Technik entsprechenden Nasszellen und Küchen. Die bestehenden Balkone wurden abgebrochen und durch grosszügige Balkone aus Ortbeton ersetzt. Die neu geschaffene Fläche erhöht den Lebenskomfort der Bewohner. Die Liftanlage wurde um ein Stockwerk erweitert, um den behindertengerechten Zugang zum Dachgeschoss zu gewährleisten. Das Gebäude wurde auch energetisch optimiert. Zu diesem Zweck wurden die Fassade, die Kellerdecke sowie das Dach gedämmt und eine Photovoltaikanlage installiert. Das Mehrfamilienhaus erstrahlt nun in neuem Licht.
Privat
2019
auf Anfrage
Baumeisterarbeiten / Gipserarbeiten / Aussenwärmedämmung / Plattenarbeiten
Projektplanung Liegun GmbH / Bauleitung Kälin Immobilien AG