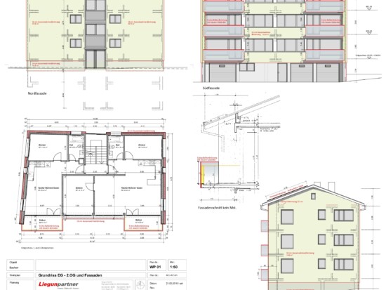
Das Ziel der Bauherrschaft war es, nicht nur das äussere Erscheinungsbild zu optimieren, sondern ein energetisches Novum zu schaffen. Das Mehrfamilienhaus verfügt nun über eine 16cm dicke Aussenwärmedämmung und das Dach wurde mit einer modernen Indach-Photovolatikanlage ausgestattet. Im Zuge der Balkonvergrösserung wurden die bestehenden Brüstungen durch innovative Geländer mit Photovoltaikmodulen ersetzt. Mit dem erzeugten Strom wird der Allgemeinstrombedarf der Liegenschaft abgedeckt. Der neue Anstrich rundet das Gesamtbild ab. Die Liegenschaft ist nun ein Blickfang und ein energetisches Unikat.
Privat
März bis August 2020
auf Anfrage
Baumeisterarbeiten / Gipserarbeiten / Fassadenputze (AWD)
Liegun GmbH